Продава 2-СТАЕН, град Пловдив, Остромила ID 21819100

94 370 €184 571.68 лв.Цената е с включено ДДС

Агенция

ФОРУМ НЕДВИЖИМИ ИМОТИ, град Пловдив
ФОРУМ НЕДВИЖИМИ ИМОТИград Пловдив Пловдив, улица Г М Димитров 25
Посетена 191 пътиПубликувана в 15:52 на 04 Октомври 2025

Обща информация

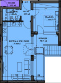
Квадратура80 m2
Етаж1-ви

Допълнителна информация

БЕЗ КОМИСИОН ОТ КУПУВАЧА!
ПРОДАЖБА ДИРЕКТНО ОТ ИНВЕСТИТОР!

Продава се двустаен апартамент на тихо място с добре изградена за квартала транспортна инфраструктура.
Сградата е пред Акт 16!

Жилище с изключително практично оформление и южно изложение.
Състои се от входно антре, всекидневна с трапезария и кухненски кът, баня с тоалетна, спалня и веранда със застроена площ от 70, 53 кв. м. Към имота има прилежащо мазе с обща площ от 4, 24 кв. м.

На подземно ниво се продава гараж на отделна цена от 15000 евро.

~~~~~~~~~~~~~~~~~~~~~~

Предлагаме безплатна консултация за жилищни и потребителски кредити. Рефинансиране на заеми. Работим с всички банки и ще Ви осигурим най-изгодните условия за финансиране на покупката на Вашия имот.

0889330903
- Запрян

Особености

В строеж • Асансьор • Саниран • Тухла

Страница на обявата

Агенция

ФОРУМ НЕДВИЖИМИ ИМОТИ, град Пловдив
ФОРУМ НЕДВИЖИМИ ИМОТИград Пловдив Пловдив, улица Г М Димитров 25

Споделяне

Преглeд на обявите по населени места: