Обща информация
Допълнителна информация
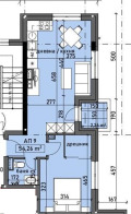
2-СТАЕН АПАРТАМЕНТ | 61. 60 кв. м | кв. Банишора | Изток | 4-ти етаж
Предлагаме за продажба функционален двустаен апартамент с отлично вътрешно разпределение, разположен на 4-ти етаж в кв. Банишора район с бърз достъп до центъра, метростанция, градски транспорт, магазини и всички необходими удобства за комфортен градски живот.
Имотът е с площ от 61. 60 кв. м и се състои от:
✔ входно антре с място за гардероб
✔ просторна дневна с кухненски бокс и трапезария с правилна форма
✔ самостоятелна спалня с дрешник
✔ баня с тоалетна
✔ тераса с излаз от дневната
Апартаментът е с източно изложение, което осигурява много естествена светлина и ниски разходи за отопление.
Разпределението е изключително практично без преходни помещения, с ясни зони за почивка и дневен тракт.
Подходящ както за:
🔹 лично ползване
🔹 инвестиция с цел отдаване под наем
📍 Локация: кв. Банишора пешеходно разстояние до метро, централна градска част, училища, детски градини и търговски обекти.
📞 За повече информация и оглед свържете се с нас.





