Посетена 3 пътиПубликувана в 11:01 на 23 Октомври 2025
Обща информация
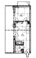
Квадратура70 m2
Етаж8-ми
Допълнителна информация
Агенция Про Вижън ви предлага НОВ двустаен апартамент под наем в кв. Победа. Имота е със западно изложение и има следното разпределение: просторен дневен тракт с излаз на тераса, спалня с излаз на втора тераса, баня с тоалетна. Жилището се намира в модерна съвременна сграда и е обзаведено с нови мебели и електроуреди в гаранция, очаквайки своя първи наемател! Отоплението и охлаждането е посредством климатици във всяка стая. Района е изключително комуникативен, с удобен обществен транспорт, близо до Гранд Мол и магазин Billa. Отдава се дългосрочно! Не се допускат домашни любимци! Огледи с ключ! За повече информация: Павел Павлов-0879 666 207
Особености
Обзаведен • Асансьор • Климатик • Окабеляване • Контрол на достъпа








