Обща информация
Допълнителна информация
Обади се сега и цитирай този КОД: 684598
Описание:
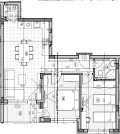
Представяме ви ЕКСКЛУЗИВНО просторен тристаен апартамент, създаден за семейства, които ценят комфорта и личното пространство. Разпределен е на кухня с дневен тракт, две спални, баня с тоалетна, тераса, килер, коридор.
Сграда:
Най-новия жилищен проект в гр. Шумен модерна и луксозна сграда в кв. Пазара, създадена за хора с вкус към качествената архитектура и високия стандарт на живот. Проектирана с изчистени линии, елегантни фасадни решения и обилна естествена светлина, сградата впечатлява както с визия, така и с функционалност.
На шест жилищни етажа са разположени 29 подбрани апартамента от комфортни едностайни, през практични двустайни и просторни тристайни, до внушителни четиристайни жилища, създадени за максимум удобство и усещане за дом. Всяко разпределение е прецизирано така, че да отговаря на модерния начин на живот и на високите очаквания на бъдещите собственици.
В проекта ще откриете и:
Изграден басейн, осигуряващ релаксираща зона за собствениците на апартаменти
Сигурна и модерна детска площадка, проектирана с внимание към безопасността и играта.
Паркоместа и гаражи за всеки апартамент, гарантиращи комфорт в ежедневието.
Общите части ще бъдат изпълнени с висококачествени материали, вдъхновени от луксозния минимализъм, а локацията в кв. Пазара осигурява отличен достъп до търговски обекти, училища, услуги и основни градски артерии.
Това е място, където стилът среща удобството. Дом, който излъчва класа. Инвестиция, която създава бъдеще.
За допълнителна информация и нови оферти посетете www.address.bg или се обадете на телефон 0893314443 и 054/820850



