Обща информация
Допълнителна информация
Агенция за недвижими имоти Калиста Естейт има огромното удоволствие да Ви представи двустаен апартамент в ж. к. Дружба 2.
Обзавеждане: шпакловка и замазка
Етап на строителство: с разрешение за въвеждане в експлоатация (акт 16) от 2026г.
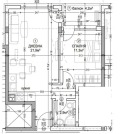
Разпределение: входно антре, кухненски бокс с хол и трапезария, спалня, баня с тоалетна и тераса
Квадратура: РЗП: 65кв. м; ЗП: 52кв. м.
Етажност: 3 от 5
Асансьор: да
Отопление : електричество
Изложение: Юг
Предимства на имота: светъл и просторен на комуникативна локация. Намира се в непосредствена близост до парк, спирки на градски транспорт, заведения, хранителни магазини, училище, детска градина и търговски обекти. Апартаментът разполага с прилежащ склад с големина 4кв. м. . Подходящ е за тези от Вас, които търсят своя нов дом мечта или за онези, които търсят перфектната инвестиционна възможност.
РЕФ. НОМЕР: 2105973
При проявен интерес към тази оферта или ако желаете БЕЗПЛАТНА консултация, може да се свържете с нас на посочения телефон.




