Брокер
Обща информация
Допълнителна информация
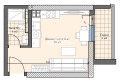
Оферта 66468: Предлагаме Ви възможността да закупите едностаен апартамент тип студио в новоизграждащ се луксозен жилищен комплекс с модерна визия, проектиран да създаде максимален комфорт на живущите в него. Tри хоризонтално разположени жилищни секции с елегантен силует готов да предложи комфорт и модерен начин на живот. Едно от основните му предимства е добрата локация, отлична комуникативност и динамична пътна инфраструктура, която осигурява бърз и лесен достъп до комплекса, от всяка точка на града. Той съчетава лукс, спокойствие и комфорт, с подсигурени паркоместа и гаражи. Жилището се състои от дневна с кухненска част, баня с тоалетна и една обща тераса. Към апартамента има избено помещение включено в цената на апартамента. Основната концепция при проектирането е да се постигнат просторни и функционални стаи, с цел да се създаде максимален уют на модерното семейство. Изключителна съвременна архитектура и модерна технология на строителство. Визията е иновативна, привличаща внимание с уникалността си. Всяко жилище ще разполага с пълно окабеляване за домофон, интернет и кабелна телевизия, общите части са луксозно завършени, жилищата са с алуминиева дограма с троен стъклопакет от най-висок клас, масивна блиндирана входна врата. За удобство на живущите съществува възможността да закупят подземни паркоместа и гаражи с топла връзка към комплекса. Гъвкави схеми на разсрочено плащане спрямо възможностите на клиента в рамките на строителството или закупуване чрез Банков Кредит, на изключително изгодни условия за клиенти на агенцията!!! Приложените изображения са от завършени проекти на строителната фирма. ВИЖТЕ ОЩЕ ИЗГОДНИ ОФЕРТИ НА https://www.kondorimoti. com/ С ЕЖЕДНЕВНА АКТУАЛИЗАЦИЯ!







