Обща информация
Допълнителна информация
ДВУСТАЕН АПАРТАМЕНТ
СГРАДА ПРЕД АКТ 16 в МАЛИНОВА ДОЛИНА ДО НСА
ТОП ЛОКАЦИЯ !!! ВИСОК КЛАС СТРОИТЕЛСТВО !!!
Открийте спокойствието на тиха южна локация и удобството на бърз градски достъп всичко това в нов, светъл двустаен апартамент на ет. 5 в Малинова долина.
+Отлична локация на 5 минути от НСА, магазини, детска градина и удобен транспорт (автобуси 94, 102, 280, 294, 805), с бърза връзка до Ринг МОЛ, ИКЕА.
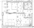
Параметри на имота:
+Площ: 69. 52 кв. м. с включение 10. 39 кв. м. общи части
+Светъл и функционален антре с възможност за вграден гардероб, дневна с кухненски бокс, спалня, баня с тоалетна и балкон.
+Етаж: 5 от 6
+Изложение: Изток/ Север
Цена: 188 000 евро с включен в цената склад
*Опция за покупка на подземно паркомясто
Допълнително осигуряваме безплатна консултация и съдействие при кандидатстване за ипотечни, потребителски и бизнес кредити чрез нашия доверен партньор Кредит Център.
За повече информация и огледи:
Тодор Костов 0885235354







