Продава 2-СТАЕН, град Варна, Владислав Варненчик 1 ID 23575953
Брокер
Обща информация
Допълнителна информация
ПРОСТОР И СВЕТЛИНА СРЕД ПАРК ОТ 3 дка! СЪЧЕТАНИЕ МЕЖДУ СПОКОЙСТВИЕ И ГРАДСКИ УДОБСТВА! Агенция за недвижими имоти HEGEMON ESTATE предлага на вашето внимание, двустаен, тухлен апартамент от 69, 10 кв. м. в нова сграда с Акт 16, модерна и съвременна визия, ж. к. Вл. Варненчик, Варна. Жилищната сграда се намира в един от бързоразвиващите се райони на Варна. Етаж 5 от 6. Асансьор. Изложение Запад.
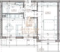
Разпределение:
Всекидневна 15, 26 кв. м. , излаз на тераса;
Спалня 15, 92 кв. м. ; излаз на тераса;
Тераса 11, 20 кв. м. ;
Баня с тоалетна 4, 47 кв. м. ;
Килер - 1, 00 кв. м. ;
Коридор 3, 26 кв. м. .
Сградата: Луксозно завършени общи части. Висок клас немска дограма, хидравличен асансьор. Домофона система за контролиран достъп в сградата. Красиво озеленени 3 дка земя и превърнати в парк. Качествено строителство от сигурен строител.
Състояние: Жилището се предлага по БДС.
Към имота се продава и подземно паркомясто от 17 000 EUR.
Атрактивното местоположение предоставя възможност освен за лично жилище, така и като инвестиционна възможност. Отлична локация в близост до автобусни спирки, главен булеврд, хранителни магазини, заведения, хипермаркети, парк, училища и детски градини.
Агенция HEGEMON ESTATE съдейства с професионална консултация, подготовка на нужните документи за закупуване на желаният от вас дом, както и съдействие за отпускане на банков кредит при най-добри условия. За повече информация, заповядайте в нашият офис, който се намира на бул. Владислав Варненчик 109, или се обадете на посоченият телефон. Код на офертата: 14458







