Брокер
Обща информация
Допълнителна информация
Имоти Премиер предлага на вашето внимание 🏡 двустаен апартамент в новострояща се сграда централна част на Варна, в близост до ЖП гара.
Представяме ви просторен и функционален двустаен апартамент, разположен в модерна сграда в процес на изграждане. Жилището е проектирано с внимание към детайла, осигурявайки комфорт и отлично разпределение на помещенията.
✨ Характеристики на имота:
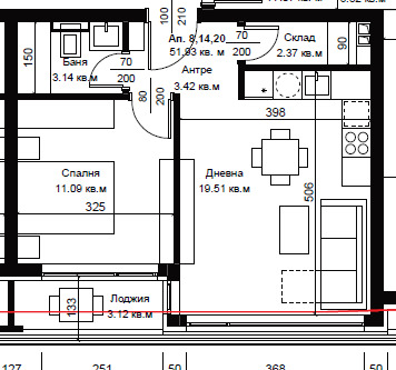
Тип: двустаен апартамент
Всекидневна с кухненска зона: 19. 51 кв. м
Спалня : 11. 09 кв. м
Лоджия: 3. 12 кв. м
Килер: 2. 37 кв. м
Баня с тоалетна:3. 14 кв. м
Антре:3. 42 кв. м.
Състояние: по БДС шпакловка, замазка, изградени ВиК и ел. инсталации до тапа
🏗 За сградата:
Съвременна архитектура и висококачествено строителство
Луксозно изпълнени общи части
Енергийно ефективни материали
Контролиран достъп и асансьор
📍 Локация:
Имотът се намира в централната част на Варна, в непосредствена близост до ЖП гара, автобусни спирки, магазини, училища и административни услуги. Районът предлага отлична комуникация с всички точки на града и е подходящ както за живеене, така и за отдаване под наем.
Към имота има и възможност за закупуване на парко място.
Имот 377608

