Посетена 93 пътиПубликувана в 15:14 на 09 Януари 2026
Обща информация
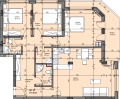
Квадратура140 m2
Етаж5-ти
Допълнителна информация
НОВ АПАРТАМЕНТ В ТИХА УЛИЧКА БЛИЗО ДО ЦЕНТЪРА
Луксозна бутикова сграда с 21 апартамента на цена 2200 е/кв. м. с без ДДС:
Други налични апартаменти:
3-стайни апартаменти на цена 248 138 евро,
4-стайни - на цена 262 328 без ДДС.
Намира се на тихата озеленена уличка, на 5 мин от метростанция и 10 мин пеша от Мол София.
Сградата ще бъде изпълнена с 2 вида каменна облицовка, луксозна алуминиева дограма и луксозни общи части.
Свободни паркоместа в подземния паркинг на сградата 25 000 евро, гаражи на кота 0 на партера цена 40 000 евро.
Разсрочено плащане:
2000 евро депозит,
30% на предварителен договор, 30% на акт 14 - очаква се Март месец, 30% на акт 15 и 10% на акт 16
За повече информация и огледи - свържете се с нас
Особености
Асансьор • С гараж • С паркинг • Интернет връзка • Контрол на достъпа • Саниран • Тухла















