Брокер
Димитър Личен телефон: 02/421 96 35; 0886 13 22 91
Посетена 196 пътиПубликувана в 12:45 на 08 Декември 2025
Обща информация
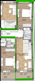
Квадратура63 m2
Етаж4-ти
ГАЗДА
Допълнителна информация
ДРИЙМ ВИЖЪН НЕДВИЖИМИ ИМОТИ Продава двустаен апартамент в кв. Овча купел. Намира се в близост до Метростанция 'Мизия', Нов български университет, детска градина, супермаркети. Жилището се състои от: входно антре, дневна с кухненски бокс, спалня, баня с тоалетна, тераса. Възможност за допълнително закупуване на гараж или паркомясто. В сградата предлагаме и други апартаменти. Качествено строителство от ДОКАЗАН СТРОИТЕЛ. Оферта в агенцията 10692 . Всички наши обяви ги работим с колеги. Още наши оферти може да намерите на www.dreamvision.bg Телефони за връзка: 0886 13 22 91 Димитър Георгиев
Особености
Асансьор • С гараж • С паркинг • Интернет връзка • Контрол на достъпа • Саниран • Възможност за дан. кредит • Тухла
Страница на обявата
Брокер
Димитър Личен телефон: 02/421 96 35; 0886 13 22 91



