Брокер
Обща информация
Допълнителна информация
Обявената цена важи при изплащане на жилището до края на 2026г! 📢
🔈 БЕЗ КОМИСИОН ДИРЕКТНО ОТ ИНВЕСТИТОР! 🔈 ОФЕРТА: 10971
⮚ Модерен комплекс с широк избор от квадратури - От уютни едностайни до просторни многостайни жилища
⮚ Изчистена архитектура , панорамни тераси и френски прозорци.
⮚ Жилища на партерно ниво, които разполагат с малки дворчета - тип веранди!
⮚ Висококачествени строителни материали, положени от високо компетентен екип!
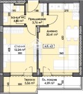
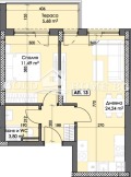
👉 Разпределение:
Двустайните жилища се състоят от: входно антре, дневна с кухненски бокс, спалня, баня с тоалетна, тераса и/или веранда.
Налични модули:
-61, 75 кв. м - 80 125 евро;
-71, 12 кв. м. - 80 480 евро;
-67, 82 кв. м. - 85 479 евро;
-69, 25 кв. м. - 87 283 евро;
-72, 38 кв. м. - 89 229 евро;
✔ ️ Степен на завършеност :
‣ Стени и тавани гипсова бяла мазилка; под циментова замазка;
‣ Алуминиева дограма с двоен стъклопакет;
‣ Тераса гранитогрес; стени и тавани фасадна мазилка с монтирани осветителни тела; парапет по детайл;
‣ Входна врата блиндирана, MDF;
‣ Електро инсталация изградена с ел. табло, съгласно проект съоръжения с предпазители, дефектно токови защити и електромери, с монтирани ключове и контакти;
‣ ВиК инсталация до тапи, с монтиран водомер с дистанционно отчитане;
‣ ОВК изпълнена съгласно проекта, включваща изводи за външни климатични тела, позиционирани на строго определени за целта места, по едно за всеки самостоятелен обект;
‣ Инсталация за видеодомофон;
‣ Кабелна инсталация извод за кабелна телевизия и интернет;
‣ Фасада топлоизолация; цветна мазилка;
‣ Общи части на сградата напълно завършени
- стълбища и площадки под гранитогрес, камък; стени и тавани гипсова мазилка и боя; електроинсталация с ключове и осветителни тела съгласно проект;
- входна врата с контрол на достъп;
- пътнически асансьори електрически;
- пощенски кутии;
🚗 Паркиране :
Възможност за закупуване на подземни и надземни паркоместа и партерни и подземни гаражи.
📅 Срокове на изпълнение :
Очаква се откриване на строителната площадка. Пусков срок 36 месеца от откриване на строителната площадка.
📍 Локация:
В непосредствена близост В близост до р-т 'Мавруда', Mall Plaza, хотел 'SPS', МЕТРО, училища, автобусни спирки, хранителни магазини и други удобни за Вас места!
➡ ️ ГОЛД ИМОТИ Ви предлага да се възползвате от професионално кредитно посредничество чрез Credit Center при ипотека, потребителски кредит и рефинансиране!
-УСЛУГАТА Е ИЗЦЯЛО БЕЗПЛАТНА!
-ИЗГОТВЯНЕ НА НЯКОЛКО ОФЕРТИ ОТ ВОДЕЩИ БАНКИ!
-НАЙ-ИЗГОДНИ УСЛОВИЯ СПРЯМО ВАШИЯТ ПРОФИЛ!
-НЕ Е НЕОБХОДИМО ДА СЕ РАЗКАРВАТЕ ВЪВ ВСЕКИ КЛОН НА РАЗЛИЧНИ БАНКИ!
➡ ️ Още атрактивни и актуални оферти може да разгледате на нашият сайт: www.goldhome.bg
📞 За повече информация и при интерес за оглед, моля свържете се с нас.






