Брокер
Обща информация
Допълнителна информация
АКТ 16!
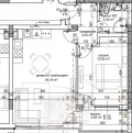
Предлагам просторен двустаен апартамент с чиста площ от 57, 68м2 на среден етаж над апартаменти. Разполага с просторен хол 24, 2 кв. м, самостоятелна спалня, антре, баня с тоалетна и тераса. Поставени са входна блиндирана входна врата и интериорни врати към всяко помещение! Монтирана е висококачествена 7-камерна дограма на марката 'ЕТЕМ'
Общите части са добре поддържани, а в близост са на разположение училище и детска градина, облагороден парк, велоалея, хранителен магазин, ЛИДЛ, както и достъп до околовръстен път с връзка към магистралата. Имотът е много светъл, с южно изложение, без затварящи го сгради отсреща.
Към апартамента има опция за закупуване на подземно/наземно паркомясто и партерни гаражи.
За повече информация и организиране на огледи - 0897080399












