Посетена 4 пътиПубликувана в 11:41 на 01 Декември 2025
Обща информация
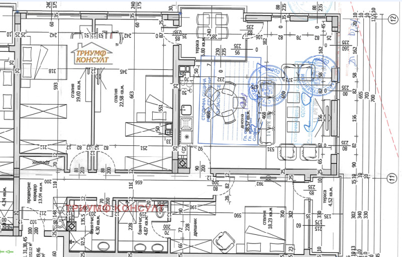
Квадратура173 m2
Етаж4-ти
ГАЗДА
Допълнителна информация
Сграда пред акт 15! ЮГ и ИЗТОК, с невероятна гледка. САМО 12% ОБЩИ ЧАСТИ!
Предлагаме на Вашето внимание най-хубавия апартамент в разпродадена сграда пред АКТ 15, находяща се в близост до бъдеща метростанция и с бърз излаз към бул. Симеоновско шосе. 🏠
🏠 Конкретният апартамент е с ЧИСТА ПЛОЩ ОТ 152. 12 кв. м, с НАД 40 кв. м хол с кухненски бокс, непреходни спални по 20 кв. м, две бани с тоалетна, склад, антре и две широки тераси. Изцяло френски прозорци, със югозападно изложение. 🏠
🚘 С възможност за закупуване на подземен двоен гараж!🚘
🏦 Официален финансов партньор на обекта е 'ДСК'АД с префернциални и гъвкави условия за всеки клиент. 🏦 ВИСОКА ОЦЕНКА ОТ ОЦЕНИТЕЛ НА БАНКАТА!
🔑 За повече информация и оглед на място 0897944425! ☎ ️
Особености
С гараж • Контрол на достъпа • Охрана • Саниран • Тухла










