Обща информация
Допълнителна информация
⛔ ️ ЦЕНА ДИРЕКТНО ОТ ИНВЕСТИТОР! ⛔ ️ Разсрочени схеми на плащане! ⛔ ️ Гарантирана цена до Акт 16! ⛔ ️
🏠 Агенция HEAVEN REAL ESTATE ви представя:
🟡 ЛУКСОЗЕН КОМПЛЕКС. ❗ Доказан инвеститор ❗
🟡 Голям избор на едностайни, двустайни, тристайни, четиристайни апартаменти и изложения!
🟡 Kв. Тракия; Мол Плаза;
🟡 Местоположение: Един от най-предпочитаните райони на град Пловдив, непосредствена близост до всякакви удобства-паркове, детски градини, училища, болница и клиники, големи вериги хранителни и нехранителни магазини, пешеходно разстояние до парк Лаута и мол Плаза.
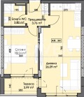
🟡 Разпределение: Всекидневна + кухненски бокс, спалня, баня+тоалетна, тераса;
❗ Възможност за закупуване на паркомясто или гараж ❗
⭐ Цена при разсрочено плащане в периода на строежа - 75870 евро!
⭐ Разполагаме с над 2000 имота БЕЗ КОМИСИОННА ОТ ВАША СТРАНА!
КОД НА ОБЯВАТА:513
⭐ Услугите които ви предлагаме:
- Консултация от старши брокер
- Съдействие с кредитен консултант относно финансирането ви
- Договаряне на възможно най-изгодни условия за вас
- Оформление на цялата документация по сделката
- Агенцията работи с утвърден юрист в бранша
- Управление на всякакъв вид имоти
⭐ При интерес за това и още много други атрактивни предложение, не се колебайте да се свържете с нас.





