Продава 1-СТАЕН, град София, Студентски град ID 25601938
Обща информация
Допълнителна информация
Ап. 06 - 118 712 EUR
ЖИЛИЩНА СГРАДА 'ZHAK NATAN'.
Директно от строително-инвестиционна компания Belprom NEW DEVELOPMENT: www.belprom.bg
Без комисиона! Обявената цена е с включен ДДС.
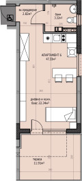
Ап. 06
Eтаж: партер
Изложение: югоизток
Застроена площ: 47. 33 кв. м.
Обща площ: 53. 96 кв. м.
13% ОБЩИ ЧАСТИ!
Сграда 'ZHAK NATAN' се намира в кв. Студентски град, гр. София на ул. Акад. Жак Натан и ул. Проф. Христо Данов.
Детска градина в съседство.
На 500 метра от парк 'Студентски', магазини 'Фантастико', 'ЛИДЛ' и автобусни линии 69, 70, 94, 102, 280, 288, 294, 413.
На 700 метра от бъдеща метростанция при кръстовището между бул. Акад. Стефан Младенов и ул. 8-ми декември с ул. Доктор Йордан Йосифов .
На 800 метра от Университет за национално и световно стопанско (УНСС).
Сградата се състои от два подземни и десет надземни етажа. Предлага 50 просторни жилища - едностайни, двустайни и тристайни. Апартаментите на партерния етаж разполагат с тераси граничещи с дворната площ на сградата, достъпна само за живущите. Паркирането е решено с подземни и надземни гаражи и паркоместа.
Отопление: ТЕЦ и ток
Дограма: шест камерна PVC с троен стъклопакет, високи прозорци
Общи части: комбинация от естествен камък и модерни декоративни елементи
Асансьор: ORONA custom design
Повече от 20 години, проектираме и изграждаме качествени, модерни и устойчиви във времето жилищни сгради на територията на гр. София. Можете да разгледате завършени проекти, както и други актуални продажби в сградата на уебсайта ни: www.belprom.bg
Проект: Zhak Natan
Телефон: 0885 119 781






