Обща информация
Допълнителна информация
✔ Цена - директно от инвеститор! ✔ Доказан строител ✔ Гарантирана цена до Акт 16! ✔ Разсрочени схеми на плащане!
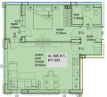
➡ Апартаментът се състои от антре, баня с тоалетна, спалня, дневна с кухня и трапезария, тераса и е с обща площ от 70, 01 кв. м. Изложение - юг, запад!
✔ Локация:
700м от Езикова гимназия Пловдив
650м от Спортна зала ПУ
700м от Пловдивски университет Паисий Хилендарски - Нова сграда
950м от УМБАЛ Пловдив АД
✔ Технически характеристики на сградите:
Конструкция: Монолитна, стоманобетонна;
Стени между съседни имоти - зид от керамични тухли с обща дебелина 25см;
Външна топлоизолация - 10см
PVС дограма Rehau, 7-камерна, двоен стъклопакет
Входни врати: Блиндирани
Вътрешни стени и таван - гипсова мазилка, под - циментова замазка;
Асансьор: електрически, шумоизолиран;
Общи части: Напълно завършени по проект.
✔ Паркиране: Възможност за закупуване на паркоместа, както и подземни гаражи.
Реф. : 9070





