Обща информация
Допълнителна информация
ЕРА Имоти Надежда Ви представяме изключителен двустаен апартамент в новострояща се монолитна жилищна сграда, разположена в широкия център на град Русе локация, която съчетава уюта на жилищен квартал с удобствата на централната градска зона.
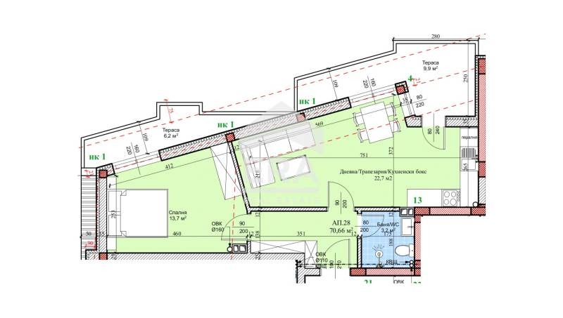
С площ от 87, 06 кв. м. , апартаментът има следното разпределение:
-Просторно входно антре
-Светла и функционална дневна с кухненски бокс в отворен план
-Спалня
-Баня с тоалетна
-Тераса
Сградата се изгражда по съвременни стандарти с акцент върху енергийна ефективност и високо качество на материалите. Всеки апартамент ще бъде издаден по БДС, предоставяйки възможност на новите собственици да го завършат според своя вкус и стил.
Локация и удобства:
Намира се в предпочитан район с отлична инфраструктура и бърз достъп до центъра. В близост ще откриете:
-Детска градина и училище
-Аптеки и супермаркети
-Градски транспорт и бензиностанция
-Спокойна среда, подходяща както за семейства, така и за инвестиция
Към апартамента има възможност за закупуване на гараж.
Свържете се с нас, за да научите повече и да запазите своя нов дом в сърцето на Русе! тел. 0899966688
Оферта 3801804

