Обща информация
Допълнителна информация
Компания X представя на Вашето внимание двустаен апартамент в Кършияка.
МЕСТОПОЛОЖЕНИЕ: В близост до магазини за хранителни стоки, спирка на градски транспорт, основни пътни артерии.
СТРОИТЕЛСТВО: Апартаментът е разположен на непоследен - 9-ти етаж в тухлена сграда.
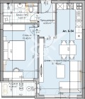
РАЗПРЕДЕЛЕНИЕ: Жилището разполага с площ от 79 кв. м. разпределена в дневна с трапезария, спалня, баня с тоалетна и лоджия.
СЪСТОЯНИЕ: Необзаведен.
Заповядайте да Ви го покажем. Използвайки нашите услуги Вие ще превърнете закупуването на новия си дом в едно приятно изживяване, ще получите персонален консултант, съдействие при кандидатстване за кредит от всички банки в България, интериорни дизайнери и екип, който да се погрижи за нужните документи по Вашата сделка. На Ваше разположение сме всеки ден, от понеделник до неделя от 09:00 до 20:00ч. Възползвайте се от безплатна консултация в наш офис, където ще ви спестим време и ще ви запознаем с всички актуални имоти в България, отговарящи на Вашето търсене. Нужен Ви е само кодът към имота: 441 - 15721

