Продава 3-СТАЕН, град Варна, Център ID 27764465

215 800 €422 068.11 лв.Цената е с включено ДДС

Агенция

НОВ ВЕК Недвижими имоти град Варна ул. София 3

Брокер

АтанаскаЛичен телефон: 0885012258
Посетена 8 пътиПубликувана в 16:39 на 08 Октомври 2025

Обща информация

Квадратура100 m2
Етаж1-ви

Допълнителна информация

Агенция за недвижими имоти НОВ ВЕК има удоволствието да Ви предложи просторен 3-стаен апартамент в сърцето на град Варна, в непосредствена близост и на пешеходно разстояние от Операта, Синия пазар, Ритуална зала, а също ЖП-гара и Морската градина.

Жилището е на 1-ви от 7-ем етажа, сградата е с асансьор и се изпълнява от доказан дългогодишен строител.

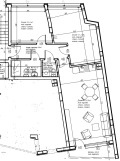
Разпределението е следното:

Коридор / антре - 6. 6 кв. м.
Всекидневна с кухненска част - 29. 8 кв. м.
Две спални: от 11. 4 кв. м. и от 17. 2 кв. м.
Перално помещение с тоалетна - 2 кв. м.
Баня с тоалет 4. 3 кв. м.
Балкона - 4. 3 кв. м.

Има възможност за закупуване на паркоместа.

Апартаментът се предлага в степен на завършеност по БДС, на шпакловка и замазка.

Агенция за недвижими имоти НОВ ВЕК може да Ви съдейства с професионална консултация, подготовка на нужните документи за закупуване на желаният от Вас имот, както и съдействие за отпускане на банков кредит.

Имотът е подходящ както за живеене, така и за инвестиция благодарение на локацията, гледката, новото строителство и удобните параметри.

За повече информация и огледи се обадете на тел. : 0885012258

Особености

Асансьор • Тухла

Страница на обявата

Агенция

НОВ ВЕК Недвижими имоти град Варна ул. София 3

Брокер

АтанаскаЛичен телефон: 0885012258

Споделяне

Преглeд на обявите по населени места: