Продава 3-СТАЕН, град Варна, Цветен квартал ID 27791222
185 000 €361 828.55 лв.Цената е с включено ДДС
Посетена 54 пътиПубликувана в 14:19 на 24 Февруари 2026
Обща информация
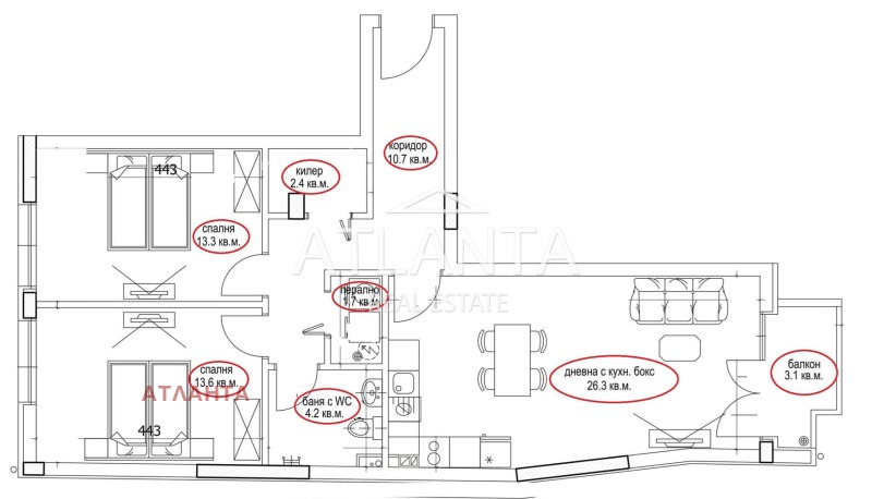
Квадратура99 m2
Етаж2-ри
Допълнителна информация
3-стаен / Реална квадратура / Цветен квартал / Южен / Доказан Строител / Спални по 13+ м2
Реф. I - 5409
Представяме ви Просторен Тристаен апартамент в един от най-комуникативните райони в град Варна, а именно - Цветен квартал.
Плюсове на сградата и апартамента:
Качествено тухлено строителство с многослойна топлоизолация
Големи стаи и междинни помещения
Южно изложение
Големи прозорци, осигуряващи естествена светлина
Внедрена интелигентна електроинсталация с възможност за автоматично управление на осветлението и климатизацията
Възможност за покупка на подземно паркомясто или гараж
Побързайте да се свържете с нас за повече информация!
Особености
Тухла

