Брокер
Обща информация
Допълнителна информация
ЕЙЧ ЕЙЧ Пропърти предлага двустаен апартамент в новия жилищен комплекс в новата част на кв. Прослав - бутиков проект с ниско строителство, състоящ се от 4 сгради на 4 етажа, с по 3 апартамента на етаж, осигуряващ спокойна и уютна жилищна среда.
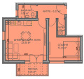
Имотът е на трети жилищен етаж, разположен в сграда 1, с площи както следва:
Обща площ апартамент - 73, 82 кв. м
Чиста площ апартамент - 62, 10 кв. м
Изложение - Запад / Север
Разпределение:
дневна с кухненски бокс, спалня, баня с тоалетна, килер и тераса.
Комплексът предлага подземно и надземно паркиране, зони за отдих и детска площадка, което го прави отличен избор за семейно жилище или инвестиция.
Локация с удобен достъп на пешеходно разстояние от детска градина, хипермаркети и автобусна спирка.
Очакван Акт 16 края на 2027 г.
📞 За повече информация:
Ангел Катушев 0897 080 399
ЕЙЧ ЕЙЧ Пропърти




