Брокер
Обща информация
Допълнителна информация
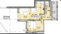
Лъки Хоум естейт представя продажба на просторен четиристаен апартамент с прилежащ двор и два гаража в новострояща се сграда в Кръстова вада един от най-предпочитаните и бързо развиващи се квартали на София. Локацията е отлична: само на 5 минути пеша от Мол Парадайс и метростанция, близо до Билла и с удобен достъп до главни булеварди и градски транспорт. Имотът представлява два обединени двустайни апартамента на партер с чиста застроена площ 105, 76 кв. м (125, 49 кв. м с общите части) и прилежащите им дворчета общо по 87, 14 кв. м. Настоящото разпределение включва две дневни, две спални, две бани с WC и две веранди с излаз към двора.
Двата апартамента са единствените на етажа, а достъпът откъм входа е ограничен за други живущи чрез обща врата за двата имота, което гарантира повече уединение и сигурност.
Продава се заедно с два надземни гаража от по 25 кв. м, на цена от 60000 евро всеки-общо 120000 Евро без ддс за гаражите. Имотът е отличен избор за просторен семеен дом или комбинация от жилище и офис/кабинет. Също така имотът е подходящ за ползване като офис или кабинет, поради локацията и лесната достъпност с автомобил или градски транспорт.
Сградата се реализира от строител с утвърдено име и няколко завършени сгради в района. Очакван акт 14 септември 2025г.
Чудесна възможност за нов дом или инвестиция в един от най-търсените райони на София с отлична инфраструктура, зелени площи и всички удобства на пешеходно разстояние.
За контакт: 0879573292 Яна Борисова





