Продава 3-СТАЕН, град София, Дианабад ID 29108635

289 900 €566 995.12 лв.Не се начислява ДДС

Агенция

ИНВЕСТИМО , град София
ИНВЕСТИМО град София бул. Тодор Каблешков 53 офис 35
Посетена 46 пътиПубликувана в 16:15 на 30 Септември 2025

Обща информация

Квадратура102 m2
Етаж9-ти
ГАЗНЕ
ТEЦДА

Допълнителна информация

ИнвестИмо предлага за продажба тристаен апартамент в кв. Дианабад

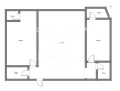
Предлагаме тристаен апартамент с площ 102 кв. м (чиста площ 88 кв. м), разположен на 9-ти етаж от общо 9 в тухлена сграда, построена през 2005 г.

Разпределение: хол, отделен кухненски бокс, 2 спални, баня с тоалетна, 2 тераси

Площ: 102 кв. м (88 кв. м чиста)

Етаж: 9 от 9

Отопление: ТЕЦ

Строителство: тухла (2005 г. )

Жилището е на много комуникативно място в непосредствена близост до главен булевард, магазини, метро и друг градски транспорт. Подходящ е както за лично ползване, така и като инвестиция.

💰 Цена: 289 900 EUR

📞 За повече информация и огледи: 0877 133 788

Особености

Тухла

Страница на обявата

Агенция

ИНВЕСТИМО , град София
ИНВЕСТИМО град София бул. Тодор Каблешков 53 офис 35

Споделяне

Преглeд на обявите по населени места: