Продава 3-СТАЕН, град Пловдив, Коматевски възел ID 29113613
Обща информация
Допълнителна информация
🙏 С всяка сделка ние от Diamond Home помагаме! 💎
Даряваме процент от нашата комисионна на Фондация Вярвай - организация, която подпомага хора, борещи се с рак.
Вярваме, че заедно можем да направим нещо повече от просто бизнес - можем да дадем надежда. ❤ ️
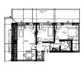
💎 Представяме Ви мансарден тристаен апартамент в нова малка модерна сграда, разположена в района на Коматевски възел.
- 📐 разпределение: Вх. антре, баня с wc, дневна с кухн. част, две спални и покрив. тераси.
- 🅿 паркинг: Възможност за закупуване на паркоместа и гаражи.
- 📍 локация: В близост до ул. Модър Царевец, магазин Била и др.
- ✔ Обектът се изгражда от утвърден инвеститор с над 30 годишен опит в строителството и множество завършени и реализирани сгради.
💎 Мисията ни е да създадем доверие във Вас, като Ви предоставяме най-високо качество на обслужване!
💎 Разполагаме с над 1000 имота!
💎 Услугите, които предлагаме:
- Консултация от старши брокер
- Съдействие с кредитен консултант относно финансирането Ви
- Договаряне на възможно най-изгодни условия за Вас
- Оформление на цялата документация по сделката
- Агенцията работи с утвърден юрист в бранша
- Управление на всякакъв вид имоти
💎 За информация или оглед относно този или друг имот не се колебайте и се свържете с нас!
ОФЕРТА НОМЕР: 241712


