Продава 3-СТАЕН, град Пловдив, Христо Смирненски ID 29283193
Обща информация
Допълнителна информация
Търсите тристаен в кв. Смирненски, Пловдив, който съчетава ново строителство, отлична локация и реален инвестиционен потенциал?
От SG Estates Bulgaria Ви представяме имот, подходящ както за лично ползване, така и за инвестиция с дългосрочна стойност.
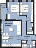
Имотът е разположен в нова сграда пред АКТ 14, с възможност за банково финансиране, и предлага функционално разпределение:
- входно антре,
- просторна дневна с кухненски бокс,
- 2 самостоятелни спални,
- 2 бани с тоалетни,
- тераса,
- килер,
- изба.
🏡 Подходящ за първи дом, отдаване под наем или сигурна инвестиция.
📍 Квартал Смирненски е сред най-предпочитаните райони в Пловдив, с бърз достъп до инфраструктура, транспорт и удобства, което гарантира стабилно търсене и добра ликвидност.
🚗 Налична е възможност за закупуване паркомясто или гараж - ключово предимство за района.
⏰ Има имоти, които не чакат - те се избират навреме.
Оферта 43 - свържете се с SG Estates Bulgaria за повече информация или оглед.
Ние градим професионален пазар на недвижимите имоти в България
We build a Professional Real Estate Market in Bulgaria


