Брокер
АнтонЛичен телефон: 0899 680 006
Посетена 3 пътиПубликувана в 11:24 на 24 Март 2026
Обща информация
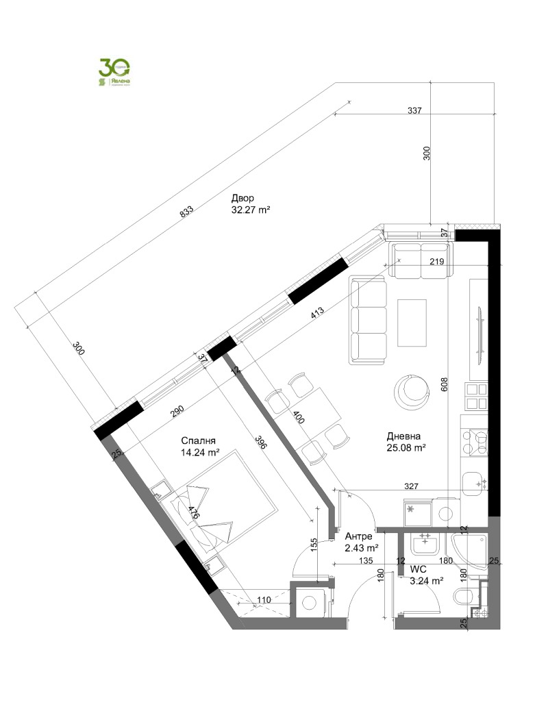
Квадратура58 m2
Допълнителна информация
БЕЗ КОМИСИОН ОТ КУПУВАЧА!!!
Вашият уютен дом с гледка към езерото и града. Жилището е със северозападно изложение, една спалня и директен достъп до зеления собствен двор 32 кв. м. , където да посрещнете утрото с кафе или да прекарате вечерите под открито небе. Усещане за дом с характер и връзка с природата.
Особености
Асансьор • Саниран • Тухла
Страница на обявата
Брокер
АнтонЛичен телефон: 0899 680 006














