Брокер
Обща информация
Допълнителна информация
ПРИРОДА И СПОКОЙСТВИЕ! УНИКАЛНА ПАНОРАМА! БЕЗКОМПРОМИСНО КАЧЕСТВО!
Представяме Ви чисто нова модерна къща построена в полите на западна Стара планина, където може да се насладите на борова гора, чист въздух, спокойствие и уникални панорами - село Шума се намира на 20 км. от гр. Костинброд и на 35 км. от гр. София.
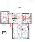
Разпределение:
-Входно антре с гардероб - /10кв. м. /, дневна с кухня и трапезария /70 кв. м. /, три бани, две мокри помещения, две тераси /45 и 50 кв. м. /
-Четири спални /2 х 25 кв. м. / и /2 х 15 кв. м. /
-Последния етаж е отворено пространство от 70 кв. м. с 360 градусова гледка, подходящ за офис или кът за творчество и отдих.
-Изба: 20 кв. м.
-Къщата разполага с две павирани паркоместа в двора и възможност за паркиране на още пет автомобила пред имота.
Допълнителни възможности за клиентите:
-БАРТЕР ЗА АПАРТАМЕНТ В СОФИЯ
-ЗАВЪРШВАНЕ НА КЪЩАТА ДО КЛЮЧ
Изпълнение:
Фасада красива и модерна конструкция от Еталбонд, под която има поставена 10 см. изолация от каменна вата с воал;
Вътрешни стени - гипсокартон с подготвена електрическа мрежа за смарт хоум система;
Вертикална планировка - мрамор, гранит и естествен гръцки камък;
Автоматична поливна система с 32 пръскачки, помпа и капково напояване;
Мълниезащита с изпреварващо действие;
Метална ограда с плъзгаща се врата;
Обадете се сега и цитирайте този код: 51 159

















