Брокер
Обща информация
Допълнителна информация
📢 ЦЕНИ ДИРЕКТНО ОТ ИНВЕСТИТОР - БЕЗ КОМИСИОН !📢
РАЗСРОЧЕНИ СХЕМИ НА ПЛАЩАНЕ! ✅ ВЪЗМОЖНОСТ ЗА БАНКОВ КРЕДИТ!
ОФЕРТА : 16660
➣ Агенция за недвижими имоти ГОЛД ИМОТИ представя възможност за покупка на жилище в нов модерен комплекс, който обединява високо качество на строителство, отлична локация и разумна цена.
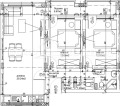
➡ ️ Разпределение :
Входно антре , дневна с трапезария и кухненски бокс , две спални , баня с тоалетна , отделна тоалетна, склад , в който ще бъдат изведени изводи за обособяване на перален кът и тераса с излаз от трите стаи.
◻ ️ Предимства на последния етаж :
По -добра гледка и максимално естествено осветление.
По-малко шум от съседи и улица повече спокойствие.
Повече уединение и комфорт.
По-чист въздух
Скатен покрив - по -голяма защита .
✨ Характеристики и предимства :
● Бутиков комплекс с ниско застрояване - само две сгради с ограничен брой апартаменти повече личност, стил и уединение.
● Всеки апартамент разполага с балкон, тераса или собствена градина .
Във всяко жилище има проектиран склад .
● Контролиран достъп чрез бариера
● Тиха и зелена жилищна среда
● Структурна мазилка
● Външни и вътрешни парапети от ковано желязо
● Лед осветление
✔ ️ Степен на завършеност:
- Ел. инсталацията с поставени ключове и контакти;
- ВиК изпълнени до тапа с монтирани водомери;
- Положена инсталация за кабелна телевизия и интернет;
- Домофонна система с видео наблюдение.
- Монтирана входна блиндирана врата;
- Фасадната дограма - 5-камерна ПВЦ със стъклопакет с мултифункционално стъкло
🅿 ️ Паркиране:
100% обезпечено паркиране . Без компромиси и без стрес място за всеки автомобил.
Има възможност за покупка както на партерни гаражи , така и на външни паркоместа .
➡ ️ Инвеститор:
Репутация, подкрепена от опит, стабилност и успешно реализирани проекти.
Гаранция за надеждност, качество и висок стандарт на изпълнение.
📌 Локация:
- Комплексът се изгражда в кв. Остромила район, който задава нов стандарт за съвременен градски живот.
➣ Тук домът Ви е обграден от спокойствие, зеленина и нискоетажно модерно застрояване, създаващо усещане за лична пространство и хармония.
Същевременно - границата с кв. Южен превръща локацията в стратегически избор за минути достигате:
- аптеки и магазини
- Супермаркет Minimart и други хранителни магазини
- офис на Speedy и Еконт
- удобни транспортни връзки
- ключови пътни артерии и бързи връзки с центъра
- Тук получавате тих и уединен жилищен оазис, без да се лишавате от удобствата на динамичен, добре развит градски район.
➡ ️ ГОЛД ИМОТИ Ви предлага да се възползвате от професионално кредитно посредничество чрез Credit Center при ипотека, потребителски кредит и рефинансиране!
-УСЛУГАТА Е ИЗЦЯЛО БЕЗПЛАТНА!
-ИЗГОТВЯНЕ НА НЯКОЛКО ОФЕРТИ ОТ ВОДЕЩИ БАНКИ!
-НАЙ-ИЗГОДНИ УСЛОВИЯ СПРЯМО ВАШИЯТ ПРОФИЛ!
-НЕ Е НЕОБХОДИМО ДА СЕ РАЗКАРВАТЕ ВЪВ ВСЕКИ КЛОН НА РАЗЛИЧНИ БАНКИ!
➡ ️ Още атрактивни и актуални оферти може да разгледате на нашият сайт: www.goldhome.bg
📞 За повече информация и при интерес за оглед, моля свържете се с нас.


