Брокер
Обща информация
Допълнителна информация
Референтен номер: 2330.
Реф. номер: 2330
МОДЕРЕН ЖИЛИЩЕН КОМПЛЕКС В РАЙОНА НА МОЛ ПЛАЗА И Х-Л SPS W КВ. ТРАКИЯ!
Предлагаме ви едностаен апартамент в луксозен жилищен комплекс в кв. Тракия и в района на МОЛ Плаза, Х-л SPS и Кауфланд!
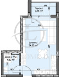
Основни характеристики на имота:
- Площ: 45. 53 кв. м
- Разпределение: Дневна с кухненски бокс, баня с тоалетна и тераса
- Етажност: 8 ет. от 10 ет. (асансьор)
- Изложение: Запад
- Тип строителство: Тухла (Акт 16 е предвиден до края 2027г. , началото на 2028г. )
В този новостроящ се луксозен жилищен комплекс се съчетава модерен дизайн и висококачествени строителни материали! Тук ще откриете комфорт и стил, които ще отговорят на всички ваши изисквания. Апартаментите са проектирани с внимание към детайла! В сградата са на разположение едностайни, двустайни и тристайни апартаменти!
За повече информация и организиране на огледи, моля, свържете се с нас на посочения номер, като ще Ви е необходим следният референтен номер: 2330
Лайт Хоум имоти е доверен партньор на най-големите банкови институции в страната и съдейства за преференциални условия при нужда от кредитиране. Ще получите юридическо съдействие през целия процес на сделката, както и съдействие при подготовка, подаване и получаване на всички необходими документи за сделката.







