Посетена 64 пътиПубликувана в 12:44 на 24 Ноември 2025
Обща информация
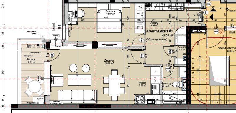
Квадратура76 m2
Етаж2-ри
ТEЦДА
Допълнителна информация
СТРАРТИРАЛО СТРОИТЕЛСТВО ! ! ! ! ТОП ЛОКАЦИЯ ! ! ! МОДЕРНА ВИЗИЯ ! ! ! ТЕЦ ! ! ! ГЪВКАВИ СХЕМИ НА ПЛАЩАНЕ ! ! ! Представяме на вашето внимание, двустаен апартамент в модерна жилищна сграда със следното разпределение: коридор, всекидневна с кухненски бокс с излаз на тераса, спалня и баня с тоалетна. Жилище се издава на шпакловка и замазка с монтирана входна врата. Отоплението е реализирано на ТЕЦ. Сградата се изпълнява с висок клас на вложените материали. Сградата се намира на комуникативно място в близост до спирки на градски транспорт, училище, детски градини и хипермаркети. Метростанция на 400м За ваше улеснение прилагаме схема с разпределението на имота. Обадете се сега 0875363330 и цитирайте този код: 139 686
Особености
Асансьор • Тухла



