Брокер
ВасиславЛичен телефон: 0883355516
Посетена 77 пътиПубликувана в 09:54 на 18 Февруари 2026
Обща информация
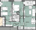
Квадратура102 m2
Етаж7-ми
Допълнителна информация
оф. 24339
АКТ 16 !! НОВА СГРАДА !! Предлагаме Ви да закупите страхотен тристаен апартамент . състоящ се просторен хол с кухненски бокс и трапезария , две големи спални , баня с тоалетна , коридор и тераса . Жилището , което Ви предлагаме да закупите се продава на шпакловка и замазка , което Ви дава пълната възможност да го довършите и обзаведете според вашия вкус . Намира се на спокойна и комуникативна локация , в близост до училища , детски градини , автобусни спирки , магазини , паркове и др.
Авангард Риъл Естейт предлага Висока сигурност при покупка на имот и цялостно съдействие до финализиране на сделката пред нотариус. За контакт: email: [email protected]; За още актуални оферти: www.avangardrealestate.bg
Особености
Асансьор • Интернет връзка • Саниран • Тухла
Страница на обявата
Брокер
ВасиславЛичен телефон: 0883355516















