Брокер
Обща информация
Допълнителна информация
🌿 ТРИСТАЕН АПАРТАМЕНТ С ЮЖНО ИЗЛОЖЕНИЕ И ГЛЕДКА КЪМ ВИТОША В СИМЕОНОВО 🌿
Предлагаме за продажба функционален тристаен апартамент, разположен в един от най-предпочитаните и спокойни райони на София кв. Симеоново. Имотът съчетава уют, практичност и отлична локация сред зеленина и чист въздух.
🏡 Основни характеристики:
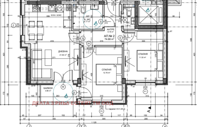
Обща площ: 91. 20 кв. м
Чиста застроена площ: 75 кв. м
В цената е включен склад в сутерена на сградата
Етаж с два апартамента
🛋 Разпределение:
Входно антре
Светла южна дневна с кухня и трапезария
Светла южна родителска спалня
Втора спалня
Баня с тоалетна и тоалетна
Излаз към тераса през дневната и спалнята
🌄 Предимства:
Южно изложение на дневната и спалнята, осигуряващо много естествена светлина
Гледка към Витоша и озеленена околна среда
Функционално разпределение с оптимално използване на пространството
Малка сграда с ограничен брой апартаменти
🔥 Отопление: електричество
🚗 Допълнително:
Възможност за закупуване на паркомясто или гараж в сутерена на сградата
📍 Локацията предлага тишина, чист въздух и бърз достъп до града, което прави имота отличен избор за хора, търсещи баланс между природа и градска среда.
📞 За повече информация и огледи: +359878477374 - Александър Гочев



