Продава 2-СТАЕН, град Пловдив, Христо Смирненски ID 30647971

110 190 €215 512.91 лв.Цената е с включено ДДС

Агенция

ЕЙЧ ЕЙЧ ПРОПЪРТИ ЕООД, град Пловдив
ЕЙЧ ЕЙЧ ПРОПЪРТИ ЕООДград Пловдив бул Мария Луиза 29

Брокер

ПетърЛичен телефон: 0897077363
Посетена 76 пътиПубликувана в 12:51 на 29 Юли 2025

Обща информация

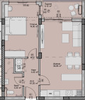
Квадратура71 m2
Етаж2-ри

Допълнителна информация

БЕЗ КОМИСИОННА ИДЕАЛНА ИНВЕСТИЦИЯ В НОВО СТРОИТЕЛСТВО!
Двустаен апартамент в нова сграда кв. Христо Смирненски, ул. Рая
Предлагаме функционален двустаен апартамент с висок инвестиционен потенциал, разположен в бързо развиваща се зона с търсене от наематели и купувачи кв. Христо Смирненски, Пловдив.

✔ Отлична локация в близост до болници, университети, търговски обекти и градски транспорт
✔ Тиха улица, ново строителство търсен микс от живущи и инвеститори
✔ Функционално разпределение хол с кухненски бокс, спалня, баня с тоалетна, тераса
✔ Подходящ за отдаване под наем или препродажба с печалба след завършване

📊 Инвестиционни акценти:
Акт 16 предвиден за 2028 г. добра възможност за капиталова доходност при растящи цени

Очакван ръст в стойността на имота с 20 30% до завършване

Подходящ за дългосрочно отдаване под наем близост до ключови локации в града - МОЛ Пловдив, МБАЛ Св. Георги, АГ Болница Селена и Пълмед.

Силен интерес от наематели в района: медицински персонал, студенти, млади семейства

🧱 Сграда от доказан инвеститор високо качество, HPL фасада, контролиран достъп, нисък процент общи части
🚗 Възможност за покупка на гараж/паркомясто
🏦 Подходящ за банково финансиране съдействие без допълнителна такса

📞 За актуални цени, схеми на плащане и останали наличности:
Петър Накаленов HH Property 2107
📱 0897 077 363
📧 imotpetar@gmail. com

Особености

Асансьор • С гараж • С паркинг • Контрол на достъпа • Саниран • Тухла

Страница на обявата

Агенция

ЕЙЧ ЕЙЧ ПРОПЪРТИ ЕООД, град Пловдив
ЕЙЧ ЕЙЧ ПРОПЪРТИ ЕООДград Пловдив бул Мария Луиза 29

Брокер

ПетърЛичен телефон: 0897077363

Споделяне

Преглeд на обявите по населени места: