Посетена 2 пътиПубликувана в 15:12 на 09 Декември 2025
Обща информация
Квадратура82 m2
Допълнителна информация
Rose Homes - агенция за недвижими имоти Ви представя:
ДОКАЗАН ИНВЕСТИТОР
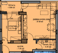
Двустаен апартамент
Локация: Южен
Квадратурa: 82 кв. м
Цена:86 100
Паркомясто: ДА
Гараж: ДА
Знаете какво търсите? Ще Ви съдействаме да го намерите бързо и без излишно губене на време.
Още се колебаете? Ще Ви запознаем с целия пазар в Пловдив и ще Ви насочим към най-подходящото жилище според Вашите нужди и желания.
Особености
Тухла




