Продава 2-СТАЕН, град Пловдив, Христо Смирненски ID 30965022
Брокер
Обща информация
Допълнителна информация
? Реф. номер: 34711! ? БЕЗ КОМИСИОННА! ? СТРАХОТНА ОФЕРТА!
? 20% НА ПД / 80% НА АКТ16! ? ГАРАНТИРАНА ЦЕНА ДО АКТ 16!
? Агенция Авеню Риъл Естейт с голямо удоволствие Ви представя:
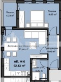
Двустаен апартамент в страхотен комплекс, разположен в кв. СМИРНЕНСКИ, гр. Пловдив!
? СУПЕР ПРЕДЛОЖЕНИЕ НА СТРАХОТНА ЛОКАЦИЯ - ПЕЩЕРСКО ШОСЕ И ГРЕБНА БАЗА!
? Доказан инвеститор с отлична репутация и множество успешни завършени проекти!
? Характеристики на сградата:
Стилна и красива фасада
Отлична архитектура с предпочитани изложения
Удобни разпределения на апартаментите
Луксозно завършени общи части
Естествен камък
Централни фоайета по дизайнерски проект
Използват се най-висококачествени строителни материали
Свободни и други двустайни и тристайни апартаменти в сградата!
Осигурено паркиране
?
? Не пропускайте възможността да станете част от този страхотен проект!
? Система за филтрация на водата
? Дентална клиника на територията на комплекса
? Търговски обекти на партерно ниво
?? Ресторант и други удобства
? Хранителен магазин
? Аптека
? Авеню Имоти Ви предлага:
Професионално кредитно посредничество чрез Credit Center при ипотека, потребителски кредит и рефинансиране!
УСЛУГАТА Е ИЗЦЯЛО БЕЗПЛАТНА!
ИЗГОТВЯНЕ НА НЯКОЛКО ОФЕРТИ ОТ ВОДЕЩИ БАНКИ!
НАЙ-ИЗГОДНИ УСЛОВИЯ СПРЯМО ВАШИЯ ПРОФИЛ!
НЕ Е НЕОБХОДИМО ДА СЕ РАЗКАРВАТЕ ВЪВ ВСЕКИ КЛОН НА РАЗЛИЧНИ БАНКИ!




