Брокер
Обща информация
Допълнителна информация
БИЛДИНГ БОКС предлага за продажба четиристаен апартамент в кв. ' Овча Купел 1' .
Имотът се намира на ключова локация за района - 5 минути от метростанция, 15 минути от ' НБУ' и бъдещ парк, който ще се изгради на близо, както и множество аптеки и супермаркети.
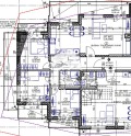
Жилището е със застроена площ от 134. 09 кв. м. и е със следното разпределение:
- Просторна дневна с кухненски бокс;
- Голяма спалня;
- 2 детски спални;
- Бяна с тоалетна;
- 3 тераси;
- Предверие
Апартаментът се намира на 6-ти жилищен етаж от общо 7 и е с изложение север/изток/запад, което осигурява много естествена светлина следобед и вечер.
Очакван срок за завършване на сградата е м. Ноември 2026г. , като етапът в момента е пред АКТ 14.
Има възможност за закупуване на подземно паркомясто и мазе;
Имотът е подходящ, както за живеене, така и за отдаване под наем с много добра възвращаемост.
Използвани са висок клас материали за строителството, за добра топло и елетроефикастност, отоплението е предвидено на газ.
БИЛДИНГ БОКС предоставя безплатна консултация и съдействие при финансиране на избрания от Вас имот.
Оферта 27064




