Брокер
Обща информация
Допълнителна информация
БИЛДИНГ БОКС предлага за продажба двустаен апартамент в кв. ' Овча Купел 1' .
Имотът се намира на ключова локация за района - 5 минути от метростанция, 15 минути от ' НБУ' , бъдещ парк ще се изгради на близо и множество аптеки и супермаркети.
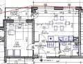
Жилището е със застроена площ от 53. 83 кв. м. и е със следното разпределение:
- Просторна дневна с кухненски бокс;
- Голяма спалня;
- Бяна с тоалетна;
- Тераса;
- Предверие;
Апартаментът е със североизточно изложение, което осигурява много естествена светлина следобед и вечер.
Намира се на 4-ти жилищен от общо 7. Отоплението е предвидено на газ.
Има възможност за закупуване на подземно паркомясто и мазе.
Имотът е подходящ, както за живеене, така и за отдаване под наем с много добра възвращаемост.
Очакван срок за завършване на сградата е м. Ноември 2026г. , като етапът в момента е пред АКТ 14.
Използвани са висок клас материали за строителството, за добра топло и елетроефикастност.
БИЛДИНГ БОКС предоставя безплатна консултация и съдействие при финансиране на избрания от Вас имот.
Оферта 27061



