Обща информация
Допълнителна информация
L` Artista представя двустаен, напълно обзаведен апартамент в кв. Малинова долина.
Имотът е на ул. проф. Др. Боян Боянов в сграда с АКТ 16.
Имотът ползва добре озеленен двор.
Огледи ще се провеждат във Вторник!
Реф . 694
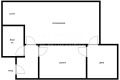
Разпределение:
-входно антре
-баня с тоалетна
-дневна с кухненски бокс с излаз на двор
-спалня с излаз на двор
Предимства:
**Спокойна улица**
**Напълно обзаведен апартамент с наемател**
**АКТ 16***
L'Artista е първата агенция в България, която предлага не само посредничество при покупко-продажба на недвижими имоти, но и широк спектър от финансови услуги - кредитиране, застраховане, инвестиционни фондове, пенсионно осигуряване и други, които осигуряват стабилност за Вашето бъдеще.
Намерете всичко, от което се нуждаете за вашите имоти и финансова сигурност на едно място!








