Продава 3-СТАЕН, град Бургас, Зорница ID 32580611

241 593 €472 514.84 лв.Цената е с включено ДДС

Агенция

ЕКС НВД ООДград Бургас ул. Сердика 2, ет. 4, офис 3
Посетена 8 пътиПубликувана в 21:05 на 26 Септември 2025

Обща информация

Квадратура134 m2
Етаж3-ти

Допълнителна информация

Компания Х представя на Вашето внимание тристаен апартамент в Зорница.

МЕСТОПОЛОЖЕНИЕ: Намира се в спокойна част на района, в близост до всичко
необходимо за еднно домакинство, както и спирки на градски транспорт и
учебни заведения.

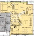
СТРОИТЕЛСТВО: Апартаментът е разположен на трети етаж, тухла.

РАЗПРЕДЕЛЕНИЕ: Жилището разполага с площ 134. 22 кв. м. , състои се от хол с
кухненски бокс, две спални, баня с тоалетна и тераса.

СЪСТОЯНИЕ: Имотът се предлага както на тапа, така и на степен до ключ,
което Ви дава възможността да го усторите по Ваш вкус и да го превърнете
в мечтания дом!

Заповядайте да Ви го покажем. Използвайки нашите услуги Вие ще
превърнете закупуването на новия си дом в едно приятно изживяване, ще
получите персонален консултант, съдействие при кандидатстване за кредит
от всички банки в България, интериорни дизайнери и екип, който да се
погрижи за нужните документи по Вашата сделка. На Ваше разположение сме
всеки ден, от понеделник до неделя от 09:00 до 20:00ч. Възползвайте се
от безплатна консултация в наш офис, където ще ви спестим време и ще ви
запознаем с всички актуални имоти в България, отговарящи на Вашето
търсене. Свържете се с нас на 0887779990 или на 0882009283 и цитирайте
кода към имота: 798-23586.

Особености

В строеж • Тухла

Страница на обявата

Агенция

ЕКС НВД ООДград Бургас ул. Сердика 2, ет. 4, офис 3

Споделяне

Преглeд на обявите по населени места: