Брокер
Обща информация
Допълнителна информация
? Реф. номер: 31006! ? СУПЕР ЦЕНА! ? АКТ 14! ? СТРАХОТНА ОФЕРТА!
? Агенция Авеню Риъл Естейт с голямо удоволствие Ви представя:
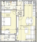
ДВУСТАЕН просторен апартамент в СТРАХОТЕН комплекс от ново поколение в кв. Кършияка, град Пловдив.
? Характеристики на сградата:
Стилна и красива фасада
Отлична архитектура с предпочитани изложения
Удобни разпределения на апартаментите
Луксозно завършени общи части
Използват се най-висококачествени строителни материали
100% осигурено с подземни и надземни паркоместа и гаражи
Детски площадки
Красиво озеленяване
? Авеню Имоти Ви предлага:
Професионално кредитно посредничество чрез Credit Center при ипотека, потребителски кредит и рефинансиране!
УСЛУГАТА Е ИЗЦЯЛО БЕЗПЛАТНА!
ИЗГОТВЯНЕ НА НЯКОЛКО ОФЕРТИ ОТ ВОДЕЩИ БАНКИ!
НАЙ-ИЗГОДНИ УСЛОВИЯ СПРЯМО ВАШИЯ ПРОФИЛ!
НЕ Е НЕОБХОДИМО ДА СЕ РАЗКАРВАТЕ ВЪВ ВСЕКИ КЛОН НА РАЗЛИЧНИ БАНКИ!



