Продава 4-СТАЕН, град София, Манастирски ливади ID 33305620
Брокер
Обща информация
Допълнителна информация
БЕЗ КОМИСИОННА !
Последни апартаменти! Акт 16!
Оферта 75242
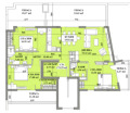
Най-впечатляващият апартамент в сградата. с гледка в три посоки, изток, север и запад.
Четиристаен апартамент с площ от 194, 18/ чисто 173, 25/кв. м. и покривна тераса 79 кв. м.
Единствен апартамент на етажа, като асансьора влиза в коридора на апартамента(с ограничен достъп).
В апартамента е изградено подово отопление, има 78, 67 кв. м. покривни тераси, 3, 54 кв. м. склад в сутерена.
Само 12, 5% общи части.
Сградата е изградена на площ от 3 декара в бързо развиващия се южен квартал Манастирски ливади-изток. Целта ни е да предложим скрит оазис с естествен парк, гледки към Витоша, спокойна среда за живеене, ниско застрояване, качествено изпълнение, ландшафт, функционалност, дизайн и сигурност.
Отличното местоположение на сградата съчетава тихо и спокойно място с удобни комуникации и възможност за бърз достъп до всички части на града чрез бул. България, бул. Тодор Каблешков и Околовръстен път! За Ваше удобство, съвсем наблизо са вериги магазини: Джъмбо, Била и Лидл; Смокиня, 800 м. от Южен парк; 1. 1 км. Мол България; 1, 3 км. Мол Парадайс, също така спирки на градския транспорт, училища, детски градини, болници и бензиностанции.
Сградата е с площ от 8820 кв. м. РЗП, състояща се от три отделни входа.
Общо 72 апартамента с една, две и три спални; 46 подземни гаражи и 29 паркоместа; собствен парк 2000 кв. м. с детска площадка и водни ефекти; ограничен достъп и видеонаблюдение; помещение за портиер; хранителен магазин вътре в комплекса; модерна вентилируема фасада и изводи за климатици във всички стаи.
Предимства:
-Просторни и светли апартаменти с френски прозорци с гледка към Витоша
-малък процент общи части
-чудесно местоположение на 60 метра от новоизграждащия се линеен парк, включващ езеро, реки, велоалеи, детски площадки и зелени площи
-високо ниво на звукоизолация и енергийна ефективност
-двойна зидария с шумоизолация м/у отделните апартаменти
-шумоизолация на пода
-алуминиева дограма Рейнърс Мастърлайн 8 с топъл дистанционер
-Шиндлер асансьори
-БЕЗ КОМИСИОННА !
Ако желаете да организираме оглед, да получите допълнителна информация или
други атрактивни предложения може да се свържете с нас на посочените контакти:
Лице за контакт: Олга Дюлгерова - телефон: 0898606700
Имотна къща Римекс София може да ви съдейства с консултация при:
- Правен казус
- Независима пазарна оценка и сравнителен анализ
- Индивидуален бизнес план при продажба и покупка
- Управление на финансов ресурс
- Кредитна консултация
- Застраховка живот и имущество






