Брокер
Обща информация
Допълнителна информация
456939 Започваме предварителни продажби на апартаменти в нов жилищен проект във в. з. Ален Мак, гр. Варна. Предлагаме възможност за избор на двустайни и тристайни апартаменти от 2-ри до 6-ти етаж, с различни изложения и добре оптимизирани вътрешни разпределения.
ПРОМОЦИОНАЛНИ ЦЕНИ ДО РАЗРЕШЕНИЕ ЗА СТРОИТЕЛСТВО!
ГЪВКАВИ СХЕМИ НА ПЛАЩАНЕ!
СЕГА Е МОМЕНТЪТ ДА РЕЗЕРВИРАТЕ ВАШИЯ ИМОТ С ПРЕДОСТАВЯНЕ НА ДЕПОЗИТ.
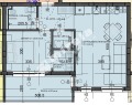
Апартаментът, който представяме с тази оферта, се състои от:
* дневна/трапезария - 22. 44м2
* спалня - 10. 05м2
* санитарно помещение - 3. 50м2
* склад/килер
* антре - 4. 68м2
* тераса - 8. 47м2
Сградата е с модерна архитектура и проекта се отличава с просторни помещения с правилни форми без скосове и отстъпи. Строителството ще се извършва с най-модерни и надеждни материали и технологии.
Отлична локация както за живеене, така и за инвестиция за отдаване под наем. На метри от сградата има денонощен магазин и спирка на градски транспорт.
Разсрочено плащане по схема.
Има 1 балкон/тераса; Непреходен; ВИД СТРОИТЕЛСТВО: тухла; ЗАСТРОЕНА ПЛОЩ 64 кв. м; ИЗЛОЖЕНИЕ: изток; СПАЛНИ: 1; БАНИ: 1; ДОГРАМА: Седем камерна PVC
_________________________________________________________________________________________________
Към потенциалните продавачи!
Ако продавате подобен имот или обмисляте дали да го направите в близко бъдеще, моля свържете се с мен. Имам клиенти, които търсят в района. Мога да дам ориентировъчна цена по телефон или имейл и по-точна цена при оглед на място.
ОГЛЕДЪТ И КОНСУЛТАЦИЯТА СА БЕЗПЛАТНИ.
МОЖЕТЕ СЪЩО ТАКА, ДА ПОДАДЕТЕ И БЕЗПЛАТНА ЧАСТНА ОБЯВА ЗА ПРОДАЖБА НА ВАШИЯ ИМОТ В MIRELA. BG, БЕЗ БРОКЕР И КОМИСИОНА.







