Брокер
Обща информация
Допълнителна информация
Агенция Ронева предлага отличен двустаен апартамент в новострояща се сграда в близост до квартал Младост 2.
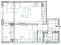
Жилището е разположено на единадесети жилищен етаж от единадесет и се състои от антре, просторна всекидневна с кухненски бокс, спалня, баня с тоалет в едно, килер и тераса.
Разпределението е функционално, помещенията са с правилни форми, което улеснява проектирането и реализирането на интериорните решения.
В сградата се предлагат подземни и външни паркоместа.
Местоположението на сградата е в близост до ключови булеварди, търговски обекти от различен тип и др.
Инвеститорът е заложил на висок клас строителни материали и технологии, отговарящи на най-новите тенденции в бранша. Сградата се отличава с отлична топло- и шумоизолация, висок клас прозоречни системи и безкомпромисно изпълнение на всички етапи от строителството.
При избор на имот винаги може да разчитате на безплатна консултация от специалистите от РОНЕВА ООД. Предлагаме също така и съдействие за отпускане на банков кредит и помощ при сключване на сделки и подготвяне на нужната документация.
ОФЕРТА 80309
www.roneva.bg




