Продава 1-СТАЕН, град София, Малинова долина ID 33957990
Обща информация
Допълнителна информация
Prestige Building представя студио с акт 15 в нова се жилищна сграда в бързо развиващия се квартал Малинова долина, гр. София, само на 300 м от НСА.
Без комисионна от купувача! Доказан инвеститор без компромис с качеството!
Цена 120999, 00 евро с ДДС.
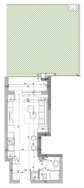
Апартамента е с обща площ 38. 50 кв. м. от които застроена площ 32. 85 кв. м. Разположен е на партер от сграда с пет жилищни етажа и магазини.
Функционално разпределение: антре, дневна и кухня с трапезария, баня с тоалетна и двор.
Изложение:север
Технически характеристики: строителството е на етап довършителни работи, като се използват cъвpeмeнни виcoĸ oeнepгийнo eфeĸ тивни мaтepиaли и тexнoлoгии, ĸ oитo дa ocигypят мaĸ cимaлeн ĸ oмфopт и ĸ aчecтвo нa живoт.
- Апартаментите ще се издават по БДС -циментова замазка по подове, гипсова шпакловка по стени и тавани, мазилка по стени и тавани в санитарни възли, ОВ и ВиК инсталация - до тапа, Ел инсталация -без монтирани ключове и контакти. Дограмата е Rehau Synego или Gealann 9000, 7 камерен профил с троен стъклопакет. Общите части ще бъдат с камък, парапетите със стъкло, а вратите Solid 55.
Отопление: на газ.
Фасадата на сградата ще е мазилка с декоративни елементи от алуминий и композитни декоративни елементи.
Строителството е на етап довършителни работи. Предстои подписването на Акт 16 до края на 2025г.
Етажност: сградата е на 5 жилищни етажа + магазини в партерния етаж + подземни паркоместа и гаражи.
Местоположение: комуникативно, в близост до Бизнес парк София , Ринг мол , IKEA , Парадайз Център, супермаркети, Национална спортна академия, Зимен дворец на спорта, детски ясли и градини, училища и висше учебни заведения, ресторанти и разнообразни търговски услуги.
В комплексът се предлагат студиа, двустайни и тристайни жилища, подземни паркоместа и гаражи.





