Посетена 172 пътиПубликувана в 18:57 на 01 Декември 2025
Обща информация
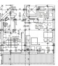
Квадратура70 m2
Етаж4-ти
Допълнителна информация
ИЗДАДЕН АKT 15!!! АKT 16 ДО 2 МЕСЕЦА
Чудесен нов тухлен апартамент близо до борова гора в гр. Варна, кв. Аспарухово.
Жилището се състои от - коридор, баня и тоалетна, спалня и всекидневна, тераса, всички помещения с правилни форми подходящи за различни функционални разпределения.
Сградата е с асансьор. Изложението е изцяло на юг, а от терасата се открива страхотна панорама!
За повече подробности и организиране на оглед звъннете на посочения телефон и цитирайте код 140554
Особености
Асансьор • Тухла





