Продава 2-СТАЕН, град Пловдив, Кючук Париж ID 35077943

82 240 €160 847.46 лв.Цената е с включено ДДС

Агенция

АЛФА РИЪЛ ЕСТЕЙТ ГРУП, град Пловдив
АЛФА РИЪЛ ЕСТЕЙТ ГРУПград Пловдив бул. 'Източен' 48, ет.5
Посетена 142 пътиПубликувана в 11:43 на 23 Септември 2025

Обща информация

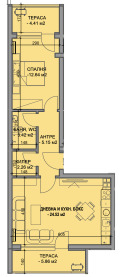
Квадратура82 m2
Етаж3-ти

Допълнителна информация

✔ Цена - директно от инвеститор! ✔ Доказан строител ✔ Гарантирана цена до Акт 16! ✔ Разсрочени схеми на плащане!

➡ Апартаментът се състои от антре, баня с тоалетна, килер, спалня, дневна с кухня и трапезария, 2 тераси и е с обща площ от 82, 24 кв. м.

✔ Локация: кв. Кючук Париж

- На 170м от ЦДГ Малина
- На 350м от Професионална гимназия по машиностроене
- На 300м от Средно училище Константин Величков
- На 650м от Медицински колеж
- На 700м от магазин Слънчеви лъчи
- На 750м от магазин Kaufland
- На 750м от магазин Lidl
- На 850м от МБАЛ Света Каридад

✔ Технически характеристики на сградите:
Конструкция: Монолитна, стоманобетонна;
Стени между съседни имоти - зид от керамични тухли с обща дебелина 25см;
Външна топлоизолация - 10см
PVС дограма Rehau, 7-камерна, двоен стъклопакет
Входни врати: Блиндирани
Вътрешни стени и таван - гипсова мазилка, под - циментова замазка;
Асансьор: електрически, шумоизолиран;
Общи части: Напълно завършени по проект.

✔ Паркиране: Възможност за закупуване на подземни и надземни паркоместа, както и подземни гаражи.

Реф. : 2580

Особености

В строеж • Асансьор • Тухла

Страница на обявата

Агенция

АЛФА РИЪЛ ЕСТЕЙТ ГРУП, град Пловдив
АЛФА РИЪЛ ЕСТЕЙТ ГРУПград Пловдив бул. 'Източен' 48, ет.5

Споделяне

Преглeд на обявите по населени места: