Обща информация
Допълнителна информация
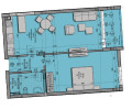
ЕРА Вива продава двустаен апартамент в луксозен комплекс в м-т Св. Никола, гр. Варна. Имотът е разположен на трети етаж и е със застроена площ от 70 кв. м. /82. 08 кв. м. с общите части/. Състои се от коридор, дневна с кухненска част, спалня, санитарно помещение и балкон с нескриваема гледка. Жилището се предлага напълно обзаведено и оборудвано, във вида от снимките. Във всяка стая има поставен климатик за отопление и охлаждане. Прилежащо складово/избено помещение, както и опция за закупуване на външно паркомясто, подходящо за две коли. Модерен и елегантен комплекс от затворен тип, разполагащ с басейн, детска площадка, обособена паркова среда със зона за отдих, охрана и видео наблюдение, както подземен и надземен паркинг. Районът е тих и спокоен с перфектен достъп. На 2 км. от плажа и 5 км. от центъра на град Варна. В непосредствена близост се намира денонощен магазин, аптека и автобусни спирки.
Оферта 1009407















