Продава 2-СТАЕН, град София, Малинова долина ID 35780454
173 500 €339 336.51 лв.Цената е с включено ДДС
Брокер
ОляЛичен телефон: 029543738; 0876808131
Посетена 21 пътиПубликувана в 10:06 на 06 Ноември 2025
Обща информация
Квадратура74 m2
Допълнителна информация
Двустаен апартамент в новострояща се сграда, част от комплекс от две сгради, с луксозно изпълнение. Намира се в близост до бул. 'Симеоновско шосе', магазин Фантастико, спирки за градския транспорт и до бъдеща метростанция.
Сградата е с луксозно завършени общи части, висок клас асансьор на испанската фирма Орона, ПВЦ дограма с немски шесткамерен профил с троен стъклопакет на Рехау. Между сградите ще бъде озеленено пространство.
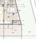
Разпределение: антре, дневна с кух. бокс, спалня, баня с тоалетна и тераса - двор 44 кв. м.
Особености
Асансьор • С гараж • Тухла
Страница на обявата
Брокер
ОляЛичен телефон: 029543738; 0876808131











