Брокер
Обща информация
Допълнителна информация
Представяме Ви НАПЪЛНО ОБЗАВЕДЕН двустаен апартамент, със следното разпределение:
Входно антре, всекидневна с кухненски бокс и трапезария, спалня, баня с тоалетна и тераса.
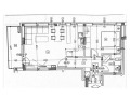
За Ваше улеснение прилагаме схема с разпределението на апартамента!
Отопление: ТЕЦ + климатик във всекидневната и допълнително поставен бойлер за периодите на профилактика от топлофикация.
Изложение: ЮГОИЗТОК и ЮГОЗАПАД!
Прилжащо мазе с площ 4кв. м.
Отлична локация в квартала!
- Тиха и спокойна улица, в близост до училища, детски градини, супермаркет и МЕТРОСТАНЦИЯ ' Красно село' !
Нова сграда С АКТ 16 от 2019г. , с ЛУКСОЗНИ ОБЩИ ЧАСТИ, създаващи усещане за УЮТ и СТИЛ на прибиране към дома!
ГОТОВ ЗА НАНАСЯНЕ !!! СРЕДЕН ЕТАЖ !!! ЛОКАЦИЯ !!!
Обади се сега и цитирай този код 683136









